Deze badkamer combineert moderne luxe met natuurlijke elementen. Het vrijstaande bad, omringd door minimalistische accenten, nodigt uit tot ultieme ontspanning. Het zachte kleurenschema en de houttinten creëren een rustgevende sfeer, perfect voor een moment van rust en herstel in stijl.
Familie de Kievit
Moderne Badkamer
22 September 2023
Amsterdam, Nederland
De strakke wastafel met een zwevende houten plank biedt een verfijnde, minimalistische uitstraling. Praktisch design ontmoet esthetiek met veel opbergruimte. De ronde spiegel boven de wastafel reflecteert niet alleen licht, maar voegt ook een stijlvol element toe aan het geheel.
Het vrijstaande bad is het middelpunt van deze elegante badkamer. Omringd door natuurlijke lichtinval en moderne jaloezieën biedt het een serene plek om te ontspannen. Met zorgvuldig gekozen details en texturen, zoals het houten accent en de subtiele marmerlook, straalt deze badkamer pure elegantie uit.






De douche is ontworpen met een geïntegreerde nis, ideaal voor het opbergen van producten zonder rommel te creëren. Strakke lijnen en hoogwaardige afwerkingen benadrukken het moderne karakter, terwijl de natuurlijke kleuren bijdragen aan een tijdloos en fris ontwerp.
Deze badkamer bewijst dat eenvoud en functionaliteit perfect samengaan. Elke hoek is met aandacht voor detail ontworpen, van de elegante kranen tot de natuurlijke tinten. Dit is een plek waar comfort en stijl elkaar naadloos ontmoeten voor dagelijks genot.
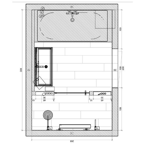
Todo baño exitoso comienza con una planificación cuidadosa del espacio. Nos fijamos en las tallas, tenemos en cuenta los deseos sanitarios y la libertad de movimiento para conseguir una distribución perfecta.
Nos tomamos el tiempo para explorar sus preferencias de estilo y requisitos funcionales. Esto incluye una discusión exhaustiva de materiales, colores, acabados y accesorios para lograr la apariencia perfecta.
Nuestros diseñadores dibujan bocetos y crean modelos 3D, donde su visión y nuestra creatividad se unen para formar conceptos de baño únicos y personalizados.
Laten we uw ideale badkamer realiteit maken met een op maat gemaakt ontwerp. Vertel ons uw wensen en wij creëren een ruimte waar u van zult houden. Klik op de knop hieronder en begin vandaag nog met het vormgeven van uw badkamer.
Diseñador de baños
Del sueño al diseño, tu baño que funciona. Con estilo y precisión, completamente de acuerdo con su visión, descubra realmente todas sus posibilidades con nuestros diseños.
Suscríbete a nuestro boletín de noticias para recibir las últimas tendencias en baño, consejos y libros electrónicos exclusivos, directamente en tu bandeja de entrada.

El diseño forma la distribución, el diseño, el estilo y el acabado de todo el baño.