Deze compacte badkamer combineert functionaliteit met stijl. De groene wandtegels voegen een modern accent toe, terwijl het terrazzo vloerdetail een speels en elegant contrast creëert. Het zwevende toilet en de glazen scheidingswand versterken de ruimte en zorgen voor een open gevoel.
Familie Graat
Moderne Badkamer
22 September 2023
Amsterdam, Nederland
De ruime wastafel met houten afwerking biedt niet alleen voldoende opbergruimte, maar draagt ook bij aan een warme, natuurlijke uitstraling. De combinatie van lichte tinten en zwarte accenten geeft deze badkamer een tijdloze look die past bij elke moderne woning.
Praktisch en esthetisch: de inloopdouche met strakke zwarte details en ingebouwde regendouche maakt van douchen een luxe ervaring. De terrazzo vloer loopt door in de douche, wat zorgt voor een harmonieus geheel. Het geheel is ontworpen met oog voor zowel functionaliteit als elegantie.




De slimme plaatsing van elementen zoals de radiator en het zwevende meubel optimaliseren de ruimte in deze compacte badkamer. Grote ramen laten natuurlijk licht binnen, wat het interieur verlicht en een rustgevende sfeer creëert, perfect voor een ontspannen start van je dag.
Kleine details maken het verschil: een minimalistisch wastafelblad, moderne verlichting en de combinatie van matte en glanzende oppervlakken voegen een verfijnd karakter toe. Deze badkamer is een prachtige mix van comfort, efficiëntie en eigentijdse stijl, ideaal voor elke moderne woning.
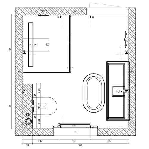
Todo baño exitoso comienza con una planificación cuidadosa del espacio. Nos fijamos en las tallas, tenemos en cuenta los deseos sanitarios y la libertad de movimiento para conseguir una distribución perfecta.
Nos tomamos el tiempo para explorar sus preferencias de estilo y requisitos funcionales. Esto incluye una discusión exhaustiva de materiales, colores, acabados y accesorios para lograr la apariencia perfecta.
Nuestros diseñadores dibujan bocetos y crean modelos 3D, donde su visión y nuestra creatividad se unen para formar conceptos de baño únicos y personalizados.
Laten we uw ideale badkamer realiteit maken met een op maat gemaakt ontwerp. Vertel ons uw wensen en wij creëren een ruimte waar u van zult houden. Klik op de knop hieronder en begin vandaag nog met het vormgeven van uw badkamer.
Diseñador de baños
Del sueño al diseño, tu baño que funciona. Con estilo y precisión, completamente de acuerdo con su visión, descubra realmente todas sus posibilidades con nuestros diseños.
Suscríbete a nuestro boletín de noticias para recibir las últimas tendencias en baño, consejos y libros electrónicos exclusivos, directamente en tu bandeja de entrada.

El diseño forma la distribución, el diseño, el estilo y el acabado de todo el baño.