Deze badkamer straalt luxe en verfijning uit met zijn strakke lijnen en gebruik van hoogwaardige materialen. De combinatie van natuurstenen tegels en zwarte accenten creëert een eigentijdse uitstraling. Elke detail, van de wastafel tot de glazen douchewand, is perfect afgewerkt.
Familie Gungor
Moderne Badkamer
22 September 2023
Amsterdam, Nederland
De minimalistische stijl van deze badkamer wordt versterkt door het gebruik van subtiele kleuren en texturen. Het contrast tussen de lichte wandtegels en donkere elementen voegt diepte toe aan de ruimte. Het ontwerp zorgt voor een serene en uitnodigende sfeer.
Met een elegante glazen douchewand en zorgvuldig geplaatste accessoires biedt deze badkamer de ultieme combinatie van functionaliteit en stijl. De douche, afgewerkt met een regendouchekop, belooft een luxueuze ervaring. De strategische plaatsing van spiegels en verlichting vergroot de ruimte optisch, ideaal voor dagelijks comfort.







De natuurstenen tegels brengen een natuurlijke elegantie naar de badkamer. Het gebruik van hoogwaardige materialen garandeert duurzaamheid en stijl, terwijl de warme tinten een gezellige sfeer creëren. Deze badkamer is een perfecte balans tussen modern design en tijdloze schoonheid.
Deze badkamer is ontworpen voor comfort en luxe. De strakke wastafel met ingebouwde opbergruimte biedt zowel stijl als functionaliteit. De zorgvuldig gekozen accessoires en decoratie maken deze badkamer compleet, waardoor het een ware oase van rust en ontspanning is.
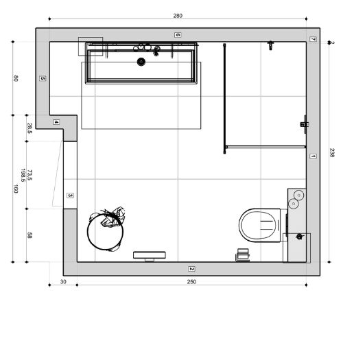
Todo baño exitoso comienza con una planificación cuidadosa del espacio. Nos fijamos en las tallas, tenemos en cuenta los deseos sanitarios y la libertad de movimiento para conseguir una distribución perfecta.
Nos tomamos el tiempo para explorar sus preferencias de estilo y requisitos funcionales. Esto incluye una discusión exhaustiva de materiales, colores, acabados y accesorios para lograr la apariencia perfecta.
Nuestros diseñadores dibujan bocetos y crean modelos 3D, donde su visión y nuestra creatividad se unen para formar conceptos de baño únicos y personalizados.
Laten we uw ideale badkamer realiteit maken met een op maat gemaakt ontwerp. Vertel ons uw wensen en wij creëren een ruimte waar u van zult houden. Klik op de knop hieronder en begin vandaag nog met het vormgeven van uw badkamer.
Diseñador de baños
Del sueño al diseño, tu baño que funciona. Con estilo y precisión, completamente de acuerdo con su visión, descubra realmente todas sus posibilidades con nuestros diseños.
Suscríbete a nuestro boletín de noticias para recibir las últimas tendencias en baño, consejos y libros electrónicos exclusivos, directamente en tu bandeja de entrada.

El diseño forma la distribución, el diseño, el estilo y el acabado de todo el baño.