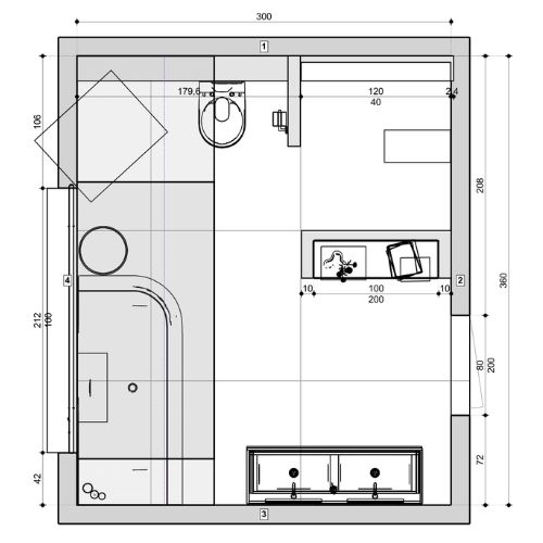
Deze badkamer combineert eigentijds design met praktische elegantie. De donkere tegelwand in visgraatpatroon creëert een speels, luxe accent, terwijl de neutrale tinten rust uitstralen. Strategische plaatsing van het bad en dubbele wastafel maximaliseert het gebruik van de ruimte zonder concessies te doen aan stijl.
Familie Haandel
Moderne Badkamer
22 September 2023
Amsterdam, Nederland
De glazen inloopdouche met minimalistische afwerking en geïntegreerde wandnissen benadrukt de moderniteit van de ruimte. Door te kiezen voor een inbouwkraan en subtiele verlichting wordt een harmonieuze balans bereikt tussen functionaliteit en verfijning, perfect voor ontspanning en dagelijks gebruik.
De slimme nisplanken naast de wastafel voegen zowel esthetiek als functionaliteit toe. Met ruimte voor handdoeken en accessoires zorgen deze planken voor een georganiseerde uitstraling. Het contrast tussen glanzende tegels en matzwarte armaturen geeft deze badkamer een gedurfde, hedendaagse uitstraling zonder aan warmte in te boeten.







De asymmetrische indeling van de badkamer biedt een speelse dynamiek zonder functionaliteit te verliezen. Het bad, gelegen onder een schuine wand, maakt optimaal gebruik van de beschikbare ruimte en creëert een knusse hoek voor ultieme ontspanning na een lange dag.
Met oog voor detail en innovatieve keuzes is deze badkamer een toonbeeld van modern wonen. Elk element, van de verfijnde kraan tot het mozaïek van groene tegels, draagt bij aan een ruimte die zowel visueel als praktisch aantrekkelijk is.
Todo baño exitoso comienza con una planificación cuidadosa del espacio. Nos fijamos en las tallas, tenemos en cuenta los deseos sanitarios y la libertad de movimiento para conseguir una distribución perfecta.
Nos tomamos el tiempo para explorar sus preferencias de estilo y requisitos funcionales. Esto incluye una discusión exhaustiva de materiales, colores, acabados y accesorios para lograr la apariencia perfecta.
Nuestros diseñadores dibujan bocetos y crean modelos 3D, donde su visión y nuestra creatividad se unen para formar conceptos de baño únicos y personalizados.
Laten we uw ideale badkamer realiteit maken met een op maat gemaakt ontwerp. Vertel ons uw wensen en wij creëren een ruimte waar u van zult houden. Klik op de knop hieronder en begin vandaag nog met het vormgeven van uw badkamer.
Diseñador de baños
Del sueño al diseño, tu baño que funciona. Con estilo y precisión, completamente de acuerdo con su visión, descubra realmente todas sus posibilidades con nuestros diseños.
Suscríbete a nuestro boletín de noticias para recibir las últimas tendencias en baño, consejos y libros electrónicos exclusivos, directamente en tu bandeja de entrada.

El diseño forma la distribución, el diseño, el estilo y el acabado de todo el baño.