Fam. Horselenberg
Moderne witte badkamer
Deze moderne witte badkamer straalt elegantie en eenvoud uit. De strakke lijnen en minimalistische uitstraling creëren een rustige sfeer. De zwarte accenten, zoals het toilet en de tegels, geven een mooi contrast en maken het geheel stijlvol en eigentijds.
- Cliente
Familie Horselenberg
- Categorie
Moderne Badkamer
- Datum
22 September 2023
- Locatie
Amsterdam, Nederland
Project Hoogtepunten
De ruime inloopdouche biedt comfort en luxe dankzij de regendouchekop. Het witte tegelwerk zorgt voor een frisse, lichte uitstraling. Plantenaccenten geven een natuurlijke touch aan het geheel, waardoor de badkamer niet alleen functioneel, maar ook uitnodigend en sfeervol aanvoelt.
Het zwevende badkamermeubel met dubbele wastafel is niet alleen praktisch, maar ook een eyecatcher. De ronde spiegel met geïntegreerde verlichting voegt extra luxe toe. Het terrazzo-vloerdesign brengt karakter en warmte, waardoor de ruimte een unieke uitstraling krijgt.






De moderne details, zoals het strakke toiletblok met zeshoekige zwarte tegels, maken de badkamer helemaal af. Het gebruik van contrasterende materialen geeft een speelse uitstraling. Perfect voor liefhebbers van minimalistisch en chic design, zonder in te boeten op functionaliteit.
De toevoeging van kleine groene planten brengt leven in de badkamer. Dit accentueert het contrast tussen het witte en zwarte kleurenschema. Deze badkamer combineert stijl en gebruiksgemak, waardoor het een perfecte keuze is voor een moderne en tijdloze uitstraling.
01.
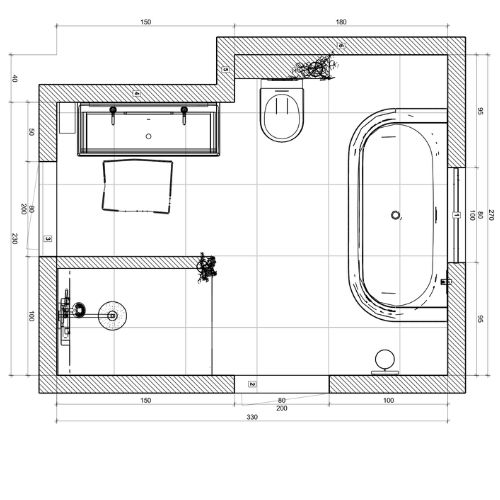
Ruimte Planning
Todo baño exitoso comienza con una planificación cuidadosa del espacio. Nos fijamos en las tallas, tenemos en cuenta los deseos sanitarios y la libertad de movimiento para conseguir una distribución perfecta.
02.
Apariencia del inventario
Nos tomamos el tiempo para explorar sus preferencias de estilo y requisitos funcionales. Esto incluye una discusión exhaustiva de materiales, colores, acabados y accesorios para lograr la apariencia perfecta.
03.
Diseño de Realización
Nuestros diseñadores dibujan bocetos y crean modelos 3D, donde su visión y nuestra creatividad se unen para formar conceptos de baño únicos y personalizados.
Realiseer Uw Badkamerdroom - Vraag Een Ontwerp Aan
Laten we uw ideale badkamer realiteit maken met een op maat gemaakt ontwerp. Vertel ons uw wensen en wij creëren een ruimte waar u van zult houden. Klik op de knop hieronder en begin vandaag nog met het vormgeven van uw badkamer.

