Fam. Huijs
Stijlvolle moderne badkamer
Deze badkamer combineert strakke lijnen en natuurlijke tinten voor een tijdloze uitstraling. De geometrische wandtegels en zwarte kranen voegen een modern randje toe, terwijl het warme hout een gevoel van comfort creëert. Een perfecte balans tussen design en functionaliteit.
- Cliente
Familie Huijs
- Categorie
Moderne Badkamer
- Datum
22 September 2023
- Locatie
Amsterdam, Nederland
Project Hoogtepunten
De vrijstaande badkuip vormt een opvallend middelpunt en nodigt uit tot pure ontspanning. Samen met de ruime douche en praktische nis biedt deze badkamer zowel comfort als stijl. Ideaal voor wie een luxe spa-ervaring in huis wil creëren.
Het dubbele wastafelmeubel, met een donker houten afwerking en minimalistische kommen, biedt niet alleen een stijlvolle uitstraling, maar ook voldoende opbergruimte. De asymmetrische spiegel benadrukt het unieke design en maakt deze badkamer een echte blikvanger in huis.







Met oog voor detail zijn de accessoires perfect op elkaar afgestemd. Van de zwarte kraan tot de subtiele verlichting en zachte handdoeken: elk element draagt bij aan de harmonie van de ruimte. Een badkamer waar luxe en rust samenkomen.
Deze badkamer is ontworpen voor zowel dagelijks gebruik als ontspanning. Met duurzame materialen en een tijdloos ontwerp is het een investering die jarenlang plezier biedt. Laat je inspireren en ontdek hoe jouw ideale badkamer eruit kan zien.
01.
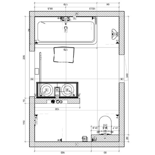
Ruimte Planning
Todo baño exitoso comienza con una planificación cuidadosa del espacio. Nos fijamos en las tallas, tenemos en cuenta los deseos sanitarios y la libertad de movimiento para conseguir una distribución perfecta.
02.
Apariencia del inventario
Nos tomamos el tiempo para explorar sus preferencias de estilo y requisitos funcionales. Esto incluye una discusión exhaustiva de materiales, colores, acabados y accesorios para lograr la apariencia perfecta.
03.
Diseño de Realización
Nuestros diseñadores dibujan bocetos y crean modelos 3D, donde su visión y nuestra creatividad se unen para formar conceptos de baño únicos y personalizados.
Realiseer Uw Badkamerdroom - Vraag Een Ontwerp Aan
Laten we uw ideale badkamer realiteit maken met een op maat gemaakt ontwerp. Vertel ons uw wensen en wij creëren een ruimte waar u van zult houden. Klik op de knop hieronder en begin vandaag nog met het vormgeven van uw badkamer.

