Fam. Kallen
Luxe beige badkamer design
Deze stijlvolle badkamer is uitgevoerd in een zachte beige tint, wat zorgt voor een warme en rustige uitstraling. Het moderne wastafelmeubel met dubbele waskommen en koperkleurige kranen biedt een luxueuze uitstraling, terwijl de nisjes praktisch opbergen mogelijk maken.
- Cliente
Familie Kallen
- Categorie
Moderne Badkamer
- Datum
22 September 2023
- Locatie
Amsterdam, Nederland
Project Hoogtepunten
De douche heeft een strakke afwerking met ingebouwde nissen voor een minimalistische look. De koperkleurige regendouche voegt een vleugje elegantie toe. Door het gebruik van hoogwaardige materialen en een slim ontwerp is deze badkamer zowel functioneel als esthetisch aantrekkelijk.
Naast het stijlvolle design biedt deze badkamer praktische oplossingen zoals een inbouwtoilet en veel opbergruimte. De grote spiegel met geïntegreerde verlichting geeft de ruimte een open en ruimtelijk gevoel. De zorgvuldig geplaatste planten en accessoires voegen een vleugje natuur en sfeer toe.







De beige wand- en vloertegels zijn naadloos op elkaar afgestemd en versterken de rustgevende uitstraling. Het gebruik van lichte kleuren in combinatie met warme accenten zorgt voor een uitnodigende en tijdloze stijl. Perfect voor een ontspannen start van je dag.
Deze badkamer biedt een complete wellness-ervaring in eigen huis. Geniet van luxe en comfort met moderne voorzieningen en een stijlvol ontwerp. Kies voor dit tijdloze ontwerp en creëer een ruimte die perfect aansluit op jouw persoonlijke stijl en behoeften.
01.
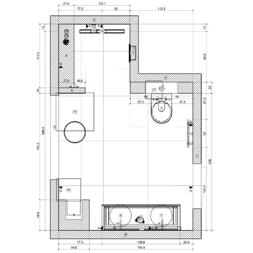
Ruimte Planning
Todo baño exitoso comienza con una planificación cuidadosa del espacio. Nos fijamos en las tallas, tenemos en cuenta los deseos sanitarios y la libertad de movimiento para conseguir una distribución perfecta.
02.
Apariencia del inventario
Nos tomamos el tiempo para explorar sus preferencias de estilo y requisitos funcionales. Esto incluye una discusión exhaustiva de materiales, colores, acabados y accesorios para lograr la apariencia perfecta.
03.
Diseño de Realización
Nuestros diseñadores dibujan bocetos y crean modelos 3D, donde su visión y nuestra creatividad se unen para formar conceptos de baño únicos y personalizados.
Realiseer Uw Badkamerdroom - Vraag Een Ontwerp Aan
Laten we uw ideale badkamer realiteit maken met een op maat gemaakt ontwerp. Vertel ons uw wensen en wij creëren een ruimte waar u van zult houden. Klik op de knop hieronder en begin vandaag nog met het vormgeven van uw badkamer.

