Fam. Lamers

Modern en stijlvol design

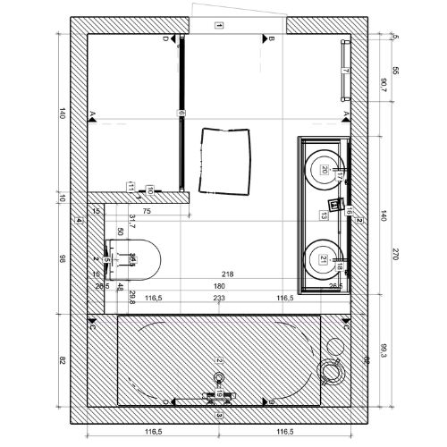
De badkamer straalt rust en moderniteit uit door het gebruik van natuurlijke tinten en strakke lijnen. De zwarte waskommen met koperen kranen geven een luxe uitstraling, terwijl de combinatie van hout en groen zorgt voor een warme en uitnodigende sfeer.

Familie Lamers

Moderne Badkamer

22 September 2023

 Amsterdam, Nederland

Project Hoogtepunten

De inloopdouche met glazen deur biedt niet alleen comfort, maar voegt ook een open gevoel toe aan de ruimte. Het groene visgraattegelwerk achter het bad fungeert als een prachtig accent en benadrukt het stijlvolle en unieke karakter van deze badkamer.

Praktische details, zoals de ingebouwde opbergruimte en het slimme gebruik van verlichting, maken deze badkamer niet alleen mooi, maar ook functioneel. Het grote, asymmetrische spiegelontwerp reflecteert het natuurlijke licht, waardoor de ruimte groter aanvoelt en tegelijkertijd een vleugje elegantie toevoegt.

Met aandacht voor elk detail is deze badkamer ontworpen om een perfecte balans te vinden tussen esthetiek en gebruiksgemak. De hoogwaardige materialen en duurzame afwerking zorgen ervoor dat deze ruimte jarenlang een luxe oase in huis blijft.

Laat je inspireren door deze stijlvolle badkamer, waar functionaliteit en elegantie samenkomen. Dit ontwerp is perfect voor wie op zoek is naar een moderne, persoonlijke ruimte die zowel rustgevend als praktisch is, met unieke elementen die echt opvallen.

01.

Ruimte Planning

Todo baño exitoso comienza con una planificación cuidadosa del espacio. Nos fijamos en las tallas, tenemos en cuenta los deseos sanitarios y la libertad de movimiento para conseguir una distribución perfecta.

02.

Apariencia del inventario

Nos tomamos el tiempo para explorar sus preferencias de estilo y requisitos funcionales. Esto incluye una discusión exhaustiva de materiales, colores, acabados y accesorios para lograr la apariencia perfecta.

03.

Diseño de Realización

Nuestros diseñadores dibujan bocetos y crean modelos 3D, donde su visión y nuestra creatividad se unen para formar conceptos de baño únicos y personalizados.

Realiseer Uw Badkamerdroom - Vraag Een Ontwerp Aan

Laten we uw ideale badkamer realiteit maken met een op maat gemaakt ontwerp. Vertel ons uw wensen en wij creëren een ruimte waar u van zult houden. Klik op de knop hieronder en begin vandaag nog met het vormgeven van uw badkamer.