Fam. Moonen

Luxe badkamertransformatie

Deze badkamer straalt een tijdloze elegantie uit met marmerlook wanden en een prachtig houten wastafelmeubel. De warme koperkleurige kranen voegen een vleugje luxe toe, terwijl het speelse design van de spiegel zorgt voor een modern accent.

Familie Moonen

Moderne Badkamer

22 September 2023

 Amsterdam, Nederland

Project Hoogtepunten

De combinatie van natuurlijke materialen en neutrale kleuren creëert een rustgevende sfeer. De strakke lijnen van het badkamermeubilair passen perfect bij het minimalistische ontwerp, wat zorgt voor een stijlvolle en functionele ruimte.

De royale inloopdouche combineert hoogwaardige materialen met een modern design, perfect voor dagelijks comfort. Met een ingebouwde nis voor het opbergen van badkamerbenodigdheden en een stijlvolle afwerking biedt deze douche niet alleen functionaliteit maar ook een verfijnde uitstraling die de badkamer compleet maakt.

De vrijstaande badkuip vormt het middelpunt van ontspanning in deze badkamer. Met haar moderne lijnen en luxe uitstraling nodigt ze uit tot ultieme rustmomenten. Een harmonieus samenspel van stijl en comfort maakt deze ruimte tot een persoonlijke spa.

Deze badkamer is een perfecte mix van elegantie en functionaliteit. De warme houttinten en koperkleurige accenten stralen luxe uit, terwijl de praktische indeling zorgt voor gebruiksgemak. Elk detail draagt bij aan een sfeer van comfort en verfijning.

01.

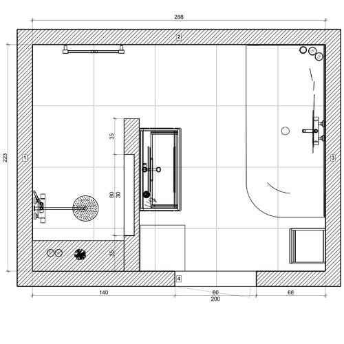
Ruimte Planning

Todo baño exitoso comienza con una planificación cuidadosa del espacio. Nos fijamos en las tallas, tenemos en cuenta los deseos sanitarios y la libertad de movimiento para conseguir una distribución perfecta.

02.

Apariencia del inventario

Nos tomamos el tiempo para explorar sus preferencias de estilo y requisitos funcionales. Esto incluye una discusión exhaustiva de materiales, colores, acabados y accesorios para lograr la apariencia perfecta.

03.

Diseño de Realización

Nuestros diseñadores dibujan bocetos y crean modelos 3D, donde su visión y nuestra creatividad se unen para formar conceptos de baño únicos y personalizados.

Realiseer Uw Badkamerdroom - Vraag Een Ontwerp Aan

Laten we uw ideale badkamer realiteit maken met een op maat gemaakt ontwerp. Vertel ons uw wensen en wij creëren een ruimte waar u van zult houden. Klik op de knop hieronder en begin vandaag nog met het vormgeven van uw badkamer.