Fam. Mourtis
Elegantie in Compact Design
Deze badkamer laat zien hoe een compacte ruimte kan worden omgetoverd tot een stijlvolle oase. Het ontwerp maakt gebruik van een serene kleurencombinatie en luxe details zoals een ronde roze waskom en gouden accenten, die samen zorgen voor een warme en elegante uitstraling.
- Cliente
Familie Mourtis
- Categorie
Moderne Badkamer
- Datum
22 September 2023
- Locatie
Amsterdam, Nederland
Project Hoogtepunten
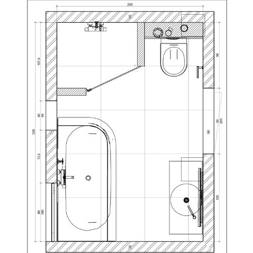
Bij dit project is zorgvuldig nagedacht over de indeling om zowel functionaliteit als stijl te waarborgen. Het zwevende wastafelmeubel zorgt voor een ruimtelijk effect, terwijl nisjes in de douche praktische opbergruimte bieden zonder de strakke lijnen van het ontwerp te onderbreken.
Het vrijstaande bad is strategisch geplaatst om de ruimte maximaal te benutten en biedt een focuspunt dat uitnodigt tot ontspanning. De combinatie van zachte tinten en goudkleurige kranen geeft de badkamer een stijlvolle en tijdloze uitstraling die perfect past bij modern design.







Het vrijstaande bad is strategisch geplaatst om de ruimte maximaal te benutten en biedt een focuspunt dat uitnodigt tot ontspanning. De combinatie van zachte tinten en goudkleurige kranen geeft de badkamer een stijlvolle en tijdloze uitstraling die perfect past bij modern design.
Elke ontwerpbeslissing in deze badkamer is gemaakt met oog voor detail en harmonie. Van de functionele indeling tot de verfijnde styling, deze ruimte combineert comfort en luxe, waardoor een badkamer ontstaat die niet alleen praktisch is, maar ook een statement maakt.
01.
Ruimte Planning
Todo baño exitoso comienza con una planificación cuidadosa del espacio. Nos fijamos en las tallas, tenemos en cuenta los deseos sanitarios y la libertad de movimiento para conseguir una distribución perfecta.
02.
Apariencia del inventario
Nos tomamos el tiempo para explorar sus preferencias de estilo y requisitos funcionales. Esto incluye una discusión exhaustiva de materiales, colores, acabados y accesorios para lograr la apariencia perfecta.
03.
Diseño de Realización
Nuestros diseñadores dibujan bocetos y crean modelos 3D, donde su visión y nuestra creatividad se unen para formar conceptos de baño únicos y personalizados.
Realiseer Uw Badkamerdroom - Vraag Een Ontwerp Aan
Laten we uw ideale badkamer realiteit maken met een op maat gemaakt ontwerp. Vertel ons uw wensen en wij creëren een ruimte waar u van zult houden. Klik op de knop hieronder en begin vandaag nog met het vormgeven van uw badkamer.

