Fam. Simons

Moderne Eleganties Badkamer

Ontdek de verfijnde charme van deze moderne badkamer met roze accenten. Het opvallende vissengraatmotief in de tegels geeft een speelse en toch elegante uitstraling. Deze ruimte is ontworpen voor ultieme ontspanning en stijl, met oog voor de kleinste details.

Familie Simons

Moderne Badkamer

22 September 2023

 Amsterdam, Nederland

Project Hoogtepunten

Het vrijstaande bad vormt een eyecatcher in deze serene ruimte. De perfecte balans tussen moderne elementen en organische accenten zorgt voor een harmonieuze uitstraling. Deze badkamer nodigt uit tot ontspanning en laat je volledig tot rust komen na een lange dag.

De gouden details geven een gevoel van luxe, terwijl het gebruik van hout en natuursteen een warme ambiance creëert. Het grote ronde spiegel met sfeerverlichting benadrukt het moderne ontwerp. Deze badkamer biedt een inspirerende omgeving waar functionaliteit en esthetiek naadloos samenkomen, ideaal voor dagelijks comfort.

De dubbele wasbakken maken deze badkamer praktisch en elegant. De minimalistische opstelling biedt voldoende opbergruimte zonder rommelig te ogen. Dankzij de slimme verlichting voelt de ruimte ruim en uitnodigend aan, perfect voor een ontspannen start van je dag.

De inloopdouche met marmerlook en gouden accenten straalt klasse uit. Het strakke lijnenspel en de hoogwaardige materialen zorgen voor een tijdloze uitstraling. Deze badkamer is ontworpen om jouw dagelijkse routines een luxueuze upgrade te geven met comfort en stijl.

01.

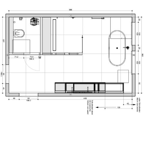
Ruimte Planning

Todo baño exitoso comienza con una planificación cuidadosa del espacio. Nos fijamos en las tallas, tenemos en cuenta los deseos sanitarios y la libertad de movimiento para conseguir una distribución perfecta.

02.

Apariencia del inventario

Nos tomamos el tiempo para explorar sus preferencias de estilo y requisitos funcionales. Esto incluye una discusión exhaustiva de materiales, colores, acabados y accesorios para lograr la apariencia perfecta.

03.

Diseño de Realización

Nuestros diseñadores dibujan bocetos y crean modelos 3D, donde su visión y nuestra creatividad se unen para formar conceptos de baño únicos y personalizados.

Realiseer Uw Badkamerdroom - Vraag Een Ontwerp Aan

Laten we uw ideale badkamer realiteit maken met een op maat gemaakt ontwerp. Vertel ons uw wensen en wij creëren een ruimte waar u van zult houden. Klik op de knop hieronder en begin vandaag nog met het vormgeven van uw badkamer.