Deze badkamer straalt elegantie en luxe uit dankzij de combinatie van strakke lijnen en zachte tinten. Het vrijstaande bad biedt een ultieme ontspanningservaring, terwijl de zwarte accenten een gedurfde, moderne uitstraling creëren. Perfect voor wie comfort en design waardeert.
Familie Van Eijndt
Moderne Badkamer
22 September 2023
Amsterdam, Nederland
De douche met geïntegreerde verlichting en tegelpatroon voegt een gevoel van luxe toe. De unieke vloer met geometrisch ontwerp zorgt voor een artistieke touch. Ideaal voor wie een badkamer zoekt die zowel praktisch als visueel aantrekkelijk is.
De wastafel met bijpassend meubel straalt moderniteit uit door zijn strakke afwerking en unieke kleurkeuze. De ronde spiegel met LED-verlichting zorgt voor een aangename sfeer en extra gemak tijdens dagelijkse routines. Een badkamer die een perfecte balans biedt tussen stijl en functionaliteit.



De speelse mix van texturen en warme kleuren geeft deze badkamer een unieke uitstraling. Elk element, van de wandtegels tot het subtiele verlichte nisje, is ontworpen met oog voor detail en gebruiksgemak. Perfect voor een stijlvol en praktisch interieur.
Met een minimalistisch ontwerp dat warmte uitstraalt, is deze badkamer een ideale keuze voor moderne woningen. De slimme indeling en hoogwaardige materialen zorgen voor een ruimte die niet alleen mooi oogt, maar ook lang meegaat. Laat je inspireren!
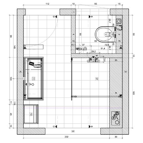
Todo baño exitoso comienza con una planificación cuidadosa del espacio. Nos fijamos en las tallas, tenemos en cuenta los deseos sanitarios y la libertad de movimiento para conseguir una distribución perfecta.
Nos tomamos el tiempo para explorar sus preferencias de estilo y requisitos funcionales. Esto incluye una discusión exhaustiva de materiales, colores, acabados y accesorios para lograr la apariencia perfecta.
Nuestros diseñadores dibujan bocetos y crean modelos 3D, donde su visión y nuestra creatividad se unen para formar conceptos de baño únicos y personalizados.
Laten we uw ideale badkamer realiteit maken met een op maat gemaakt ontwerp. Vertel ons uw wensen en wij creëren een ruimte waar u van zult houden. Klik op de knop hieronder en begin vandaag nog met het vormgeven van uw badkamer.
Diseñador de baños
Del sueño al diseño, tu baño que funciona. Con estilo y precisión, completamente de acuerdo con su visión, descubra realmente todas sus posibilidades con nuestros diseños.
Suscríbete a nuestro boletín de noticias para recibir las últimas tendencias en baño, consejos y libros electrónicos exclusivos, directamente en tu bandeja de entrada.

El diseño forma la distribución, el diseño, el estilo y el acabado de todo el baño.