Deze badkamer combineert stijl en functionaliteit perfect. De blauwe tegels in visgraatmotief brengen een unieke uitstraling, terwijl het strakke witte sanitair voor een tijdloze look zorgt. Ideaal voor een moderne woning met oog voor detail en comfort.
Familie Veldman
Moderne Badkamer
22 September 2023
Amsterdam, Nederland
Het grote, ronde spiegelontwerp versterkt de ruimtelijkheid van de badkamer. Samen met de houten accenten en minimalistische accessoires geeft dit een warme en uitnodigende sfeer. Geniet dagelijks van een oase van rust in uw eigen huis.
De inloopdouche met nis biedt zowel praktisch gemak als elegantie. Hier kunt u uw producten overzichtelijk bewaren, terwijl de stijlvolle, strakke afwerking de ruimte modern en georganiseerd houdt. Een ultiem samenspel van design en gebruiksgemak.







Houten jaloezieën bieden een natuurlijke lichtinval en voldoende privacy. Deze stijlvolle toevoeging versterkt de luxe uitstraling van de badkamer, terwijl het perfect aansluit bij het moderne en warme ontwerp voor een comfortabele en uitnodigende sfeer.
Realiseer uw droomproject met een badkamer die uitblinkt in stijl en comfort. Onze specialisten staan klaar om u te helpen met een unieke, hoogwaardige afwerking. Neem contact op en maak uw badkamer compleet!
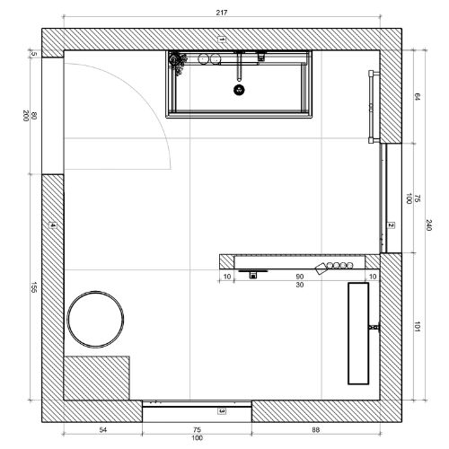
Todo baño exitoso comienza con una planificación cuidadosa del espacio. Nos fijamos en las tallas, tenemos en cuenta los deseos sanitarios y la libertad de movimiento para conseguir una distribución perfecta.
Nos tomamos el tiempo para explorar sus preferencias de estilo y requisitos funcionales. Esto incluye una discusión exhaustiva de materiales, colores, acabados y accesorios para lograr la apariencia perfecta.
Nuestros diseñadores dibujan bocetos y crean modelos 3D, donde su visión y nuestra creatividad se unen para formar conceptos de baño únicos y personalizados.
Laten we uw ideale badkamer realiteit maken met een op maat gemaakt ontwerp. Vertel ons uw wensen en wij creëren een ruimte waar u van zult houden. Klik op de knop hieronder en begin vandaag nog met het vormgeven van uw badkamer.
Diseñador de baños
Del sueño al diseño, tu baño que funciona. Con estilo y precisión, completamente de acuerdo con su visión, descubra realmente todas sus posibilidades con nuestros diseños.
Suscríbete a nuestro boletín de noticias para recibir las últimas tendencias en baño, consejos y libros electrónicos exclusivos, directamente en tu bandeja de entrada.

El diseño forma la distribución, el diseño, el estilo y el acabado de todo el baño.