Fam. Vlot

Luxe en modern badkamerdesign

Deze badkamer combineert elegantie en functionaliteit in een uniek design. De subtiele kleuren en hoogwaardige materialen stralen luxe uit. Het vrijstaande bad en de ingebouwde douche bieden ultiem comfort. Elk detail, van kraan tot tegel, is zorgvuldig geselecteerd voor een perfect geheel.

Familie Vlot

Moderne Badkamer

22 September 2023

 Amsterdam, Nederland

Project Hoogtepunten

De badkamer biedt een oase van rust met zachte aardetinten en moderne accenten. De dubbele wastafel met koperen kranen is zowel praktisch als stijlvol. Opbergruimte is slim geïntegreerd, waardoor de ruimte strak en overzichtelijk blijft, ideaal voor dagelijks gebruik.

Innovatief en tijdloos, deze badkamer biedt alles wat je nodig hebt voor ultiem genot. De donkere tegels creëren een prachtig contrast met de lichte wanden en het sanitair. De ingebouwde nissen zijn niet alleen decoratief, maar bieden ook praktische opbergruimte. Perfect voor een moderne levensstijl.

Deze badkamer biedt de perfecte balans tussen stijl en comfort. De hoogwaardige materialen en afwerkingen zorgen voor een exclusieve uitstraling. De combinatie van lichte en donkere accenten geeft de ruimte een speelse, maar toch serene sfeer, ideaal voor ontspanning.

Van het luxueuze bad tot de strakke wastafel, deze badkamer ademt verfijning. Het slimme gebruik van ruimte en verlichting benadrukt het moderne ontwerp. Elke hoek is ontworpen om zowel esthetisch aantrekkelijk als functioneel te zijn, voor een ultieme badkamerervaring.

01.

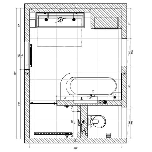
Ruimte Planning

Todo baño exitoso comienza con una planificación cuidadosa del espacio. Nos fijamos en las tallas, tenemos en cuenta los deseos sanitarios y la libertad de movimiento para conseguir una distribución perfecta.

02.

Apariencia del inventario

Nos tomamos el tiempo para explorar sus preferencias de estilo y requisitos funcionales. Esto incluye una discusión exhaustiva de materiales, colores, acabados y accesorios para lograr la apariencia perfecta.

03.

Diseño de Realización

Nuestros diseñadores dibujan bocetos y crean modelos 3D, donde su visión y nuestra creatividad se unen para formar conceptos de baño únicos y personalizados.

Realiseer Uw Badkamerdroom - Vraag Een Ontwerp Aan

Laten we uw ideale badkamer realiteit maken met een op maat gemaakt ontwerp. Vertel ons uw wensen en wij creëren een ruimte waar u van zult houden. Klik op de knop hieronder en begin vandaag nog met het vormgeven van uw badkamer.