Deze badkamer ademt rust en luxe door het gebruik van warme aardetinten en hoogwaardige materialen. Het ontwerp combineert natuursteenstructuren met strakke lijnen en bronzen accenten, wat zorgt voor een elegante uitstraling en een perfect evenwicht tussen comfort en esthetiek.
Familie Zwakhoven
Moderne Badkamer
22 September 2023
Amsterdam, Nederland
Dit project combineert modern minimalisme met warme materialen voor een uitnodigende uitstraling. De robuuste wandtegels en bronzen kranen geven de badkamer een luxe uitstraling, terwijl slimme opbergoplossingen zorgen voor praktisch gemak in deze stijlvol ontworpen ruimte.
Het vrijstaande bad is een echte eyecatcher en straalt luxe en ontspanning uit. In combinatie met dubbele wastafels en minimalistische bronzen kranen biedt deze badkamer zowel functioneel gemak als visuele harmonie. Elk element versterkt het gevoel van luxe en tijdloze schoonheid in deze ruimte.






De aardse kleuren en natuurlijke materialen brengen een serene en uitnodigende sfeer. De hexagonale wandplanken zorgen voor een speelse twist in het strakke ontwerp, terwijl ze ruimte bieden voor persoonlijke accenten die de badkamer een uniek karakter geven.
Met oog voor detail en vakmanschap is deze badkamer ontworpen als een rustgevende oase. De harmonie tussen natuurlijke elementen, marmeraccenten en bronzen afwerkingen maakt dit een functionele maar tegelijkertijd inspirerende ruimte, perfect voor dagelijkse ontspanning en welzijn.
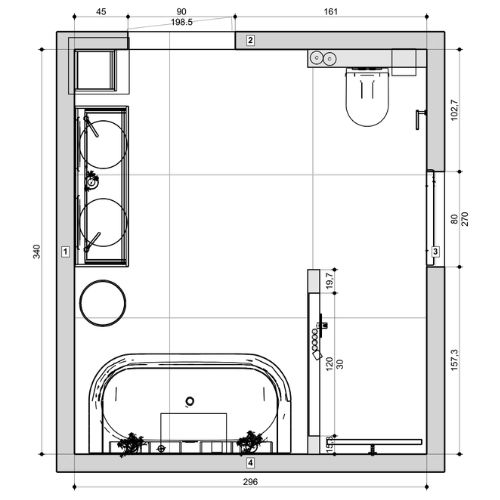
Todo baño exitoso comienza con una planificación cuidadosa del espacio. Nos fijamos en las tallas, tenemos en cuenta los deseos sanitarios y la libertad de movimiento para conseguir una distribución perfecta.
Nos tomamos el tiempo para explorar sus preferencias de estilo y requisitos funcionales. Esto incluye una discusión exhaustiva de materiales, colores, acabados y accesorios para lograr la apariencia perfecta.
Nuestros diseñadores dibujan bocetos y crean modelos 3D, donde su visión y nuestra creatividad se unen para formar conceptos de baño únicos y personalizados.
Laten we uw ideale badkamer realiteit maken met een op maat gemaakt ontwerp. Vertel ons uw wensen en wij creëren een ruimte waar u van zult houden. Klik op de knop hieronder en begin vandaag nog met het vormgeven van uw badkamer.
Diseñador de baños
Del sueño al diseño, tu baño que funciona. Con estilo y precisión, completamente de acuerdo con su visión, descubra realmente todas sus posibilidades con nuestros diseños.
Suscríbete a nuestro boletín de noticias para recibir las últimas tendencias en baño, consejos y libros electrónicos exclusivos, directamente en tu bandeja de entrada.

El diseño forma la distribución, el diseño, el estilo y el acabado de todo el baño.